Nouvelle loi Jeanbrun : tout savoir de ce nouveau dispositif pour investir dans l'immobilier neuf

Parole d'expert MIEUX COMPRENDRE L'IMMOBILIER NEUF

Edition du 19/07/2020
Mise à jour le 22/07/2025

Immobilier neuf : comment lire un plan d'architecte ?

Le plan d'architecte de votre prochain logement neuf est la base de l'achat en VEFA ou de la construction d'une maison neuve.
Le plan d'architecte de votre prochain logement neuf est la base de l'achat en VEFA ou de la construction d'une maison neuve.

Que ce soit pour acheter en VEFA un appartement neuf ou pour faire construire une maison neuve, il est nécessaire de savoir lire un plan d’architecte. Abréviations, plan masse, échelle utilisée… voici tout ce qu’il faut savoir pour faciliter la lecture d'un plan d’appartement neuf.

Le propre de l'habitat neuf : votre futur achat immobilier n’existe pas encore et pour se projeter : la base reste le plan de l’architecte, fourni par le promoteur ou le constructeur. Avant même les perspectives et les éventuelles projections 3D, il faut savoir lire le plan d'architecte pour comprendre tous les tenants de votre projet immobilier. En effet, que ce soit pour acquérir un appartement neuf en VEFA, achat sur plan, ou pour faire construire une maison, le plan de l’architecte est la première étape. Voici comment lire le plan d’un appartement neuf.
 

Plan masse, plan de coupe, de niveau : comment savoir lire et bien comprendre les différents types de plan de construction d'une maison ?

 
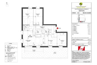
L'acquisition d'un logement en VEFA, Vente en Etat Futur d'achèvement nécessite une bonne compréhension du plan d'architecte. C'est un dessin technique qui illustre l'agencement de l'appartement, les dimensions des pièces et l'orientation du logement. L'échelle, la cotation et les symboles utilisés sont des éléments clés pour lire et comprendre ce plan. Il faut maîtriser ces aspects pour visualiser avec précision votre prochain logement. D’abord, il existe différents plans de conception dans le cadre de l’achat d’un appartement neuf issu d'un programme immobilier. 
  •  - le plan masse : il situe le programme neuf et les éventuels différents bâtiments qui le compose dans son environnement, on y voit les limites de la parcelle à bâtir et souvent une boussole indiquant les quatre principales orientations. De quoi s’informer sur l’ensoleillement de votre nouvel appartement neuf. Attention d’ailleurs aux ombres portées des constructions environnantes.
  •  - le plan de votre appartement neuf : il présente l’aménagement intérieur, indiquant la nature des différentes pièces : séjour, chambre, salle de bain, cuisine, toilettes..., leur superficie, leur longueur et largeur, les différentes ouvertures : orientation des portes, fenêtres, portes-fenêtres ou coulissantes… Il est aussi parfois stipulé des éléments tels que l'évier, lavabo, douche, baignoire... 
Attention : il existe une différence entre la surface utile des pièces et la surface en loi Carrez ne prenant en compte que les mètres carrés ayant une hauteur sous plafond supérieure à 1m80. 
A noter que le promoteur immobilier peut également fournir un plan de situation, indiquant la présence des commerces, écoles, mairie, transports, équipements… présents à proximité de la future résidence. Lire aussi - Qu'est-ce qu'une maison d'architecte ?
 

Lecture des légendes et symboles d’un plan d’appartement neuf

 
Pour lire un plan d’architecte : première étape : connaître son échelle ! Votre nouveau bien immobilier est alors souvent représenté au 1/50 : 2 cm pour 1 m ou au 1/100 : 1 cm pour 1 m. Une cotation qui vous donnera une idée des dimensions réelles de chaque pièce et ainsi savoir comment les aménager et comment y installer vos meubles par exemple. 
 

Comment comprendre un plan de construction à l'échelle 1 50 ?

Ensuite, en plus de l'échelle, ce sont les épaisseurs de trait qui seront importantes : les traits les plus épais représentent les murs porteurs, quand les traits fins sont pour les cloisons qu’il sera possible de modifier pour personnaliser l’appartement neuf. Enfin, le trait en pointillé ou arrondi représente les portes et fenêtres.
Les cercles ou autres ronds en pointillés sont pour signifier les pièces accessibles aux personnes à mobilité réduite et la possible rotation d’un fauteuil roulant. 
Sur un plan d’architecte, on trouve aussi le cartouche, au masculin, indiquant le nom de l’opération, du promoteur, de l’architecte, avec le récapitulatif de toutes les superficies des pièces du logement et les informations dites réglementaires, comme les légendes. C'est comme la carte d'identité du dessin technique avec toutes les informations nécessaires pour identifier le type de plan, ses cotations... On trouve aussi un plan réduit indiquant la localisation du logement au sein de la résidence ou sur le terrain à bâtir pour une maison neuve.
 

Plan 3D d’un appartement neuf et visite virtuelle

 
plan appartement neuf
Le promoteur doit fournir et annexer au contrat de réservation un plan d'architecte détaillé de votre nouvel appartement neuf. @Interconstruction
Le plan de l’architecte d’un appartement en VEFA est la première étape de l’acquisition sur plan, comme son nom l’indique. Désormais, pour aider l’acquéreur à se projeter dans son prochain logement neuf, les promoteurs, constructeurs, architectes, proposent des visites virtuelles ou des modélisations en 3D. Elles permettent de visualiser en trois dimensions l’implantation du programme neuf dans son quartier, de son lot dans sa résidence et bien sûr de visiter comme si on y était déjà l’intérieur du bien et son aménagement. 
Impératif : bien que ces visites virtuelles soient pertinentes pour s’immerger dans son environnement proche, le plan papier de l’appartement neuf ou de la maison neuve est obligatoirement annexé au contrat de réservation VEFA ou du CCMI comme à l’acte authentique de vente. 

En conclusion, la lecture d'un plan d'architecte est essentielle lors d'un achat en VEFA ou de la construction d'une maison neuve. Comprendre les différents types de plans de conception permet d'avoir une vision claire et précise du projet immobilier. Le plan masse situe le programme neuf dans son environnement, avec des informations sur l'ensoleillement et les ombres portées.

Le plan de l'appartement ou de la maison présente l'aménagement intérieur, les dimensions des pièces et les ouvertures. L'échelle du plan est un élément clé pour évaluer les dimensions réelles et planifier l'aménagement intérieur. Bien que les visites virtuelles en 3D offrent une expérience immersive, le plan d'architecte reste une pièce indispensable annexée aux contrats de réservation ou d'achat. Il constitue une référence précise et fiable pour concrétiser le projet immobilier. En comprenant et en interprétant correctement un plan d'architecte, les futurs propriétaires peuvent se projeter plus facilement dans leur nouveau cocon et prendre des décisions éclairées tout au long du processus d'achat.


Par Céline Coletto

Bâtiment : les abréviations d’un plan d’architecte

Pour faciliter la lecture des plans d’architecte d’un appartement neuf ou d’une maison neuve, on trouve toute une série d’abréviations utiles pour mieux visualiser l’organisation des pièces. 
 

Que signifie VR ou EP sur un plan ?

 
ALL ou AL : allège : indication en cm spécifiant la hauteur entre le bas d’une fenêtre et le sol
Seuil ou S.5 ou S.10 : indique le seuil de 5 ou 10 cm entre le bas d’une porte-fenêtre et le sol 
ATT : raccordement pour les équipements d’électroménager
CF : conduit de fumée
CH : chaudière
CUI : bloc cuisson
CVR : coffre de volet-roulant
EP : Eaux pluviales
EU : Eaux usées
EV : Eaux vanne
GCM : garde-corps métallique
GTL : gaine technique de logement
HSFP : hauteur sous faux plafond
LL : emplacement pour lave-linge
LV : emplacement pour lave-vaisselle
PF : porte-fenêtre
PL : placard
PV : pare-vue
R ou FR : emplacement pour réfrigérateur
SS : sèche-serviette
TE : tableau électrique ou ETEL : Espace Technique Électrique du Logement
TRI : Tri sélectif
VB : ventilation basse
VH : ventilation haute
VMC : ventilation mécanique contrôlée
VR : volet-roulant

Tags immobilier neuf  achat sur plan  acheter sur plan  VEFA  plan d'architecte 

Partager sur :